Одесса, Приморский р-н, Центр, ул. Успенский пер

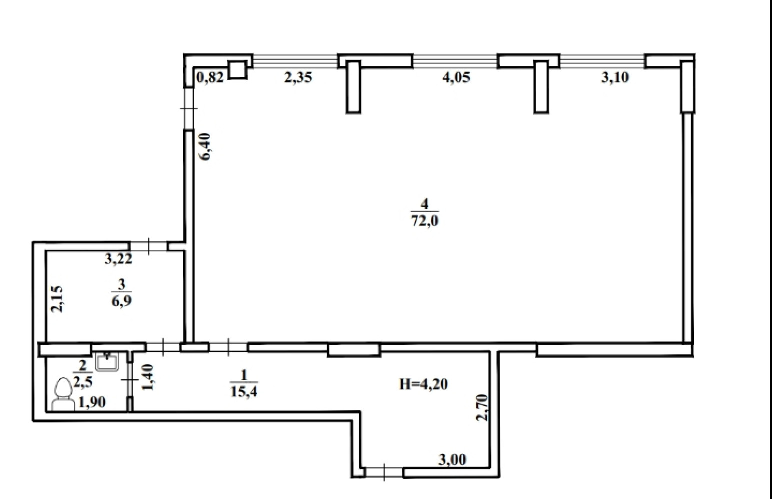
  • Площа: 97/90/7 м²
  • Площа ділянки: соток
  • Кількість кімнат: 2
  • Поверх: 1/10
  • Стан: От строителей
  • Санвузол:
  • Код об`єкта: 29981
  • Матеріал:
  • 📅 14:04:2026
  • 👁 1
Схожі варіанти
Дивитись все

Агентство нерухомості «FAKTOR» – кваліфікована допомога для придбання житла в Одесі

Звернення до агентства нерухомості «FAKTOR» допоможе уникнути ризиків, які зазвичай виникають у процесі угоди під час продажу, придбання або оренди будинку, квартири, земельної ділянки. Залучення ріелторів для супроводу подібного процесу – це оптимальний спосіб грамотно підготуватися та отримати комплексний супровід на всіх етапах угоди.

Чому така популярна нерухомість в Одесі?

Сонячне місто з неповторним південним колоритом не лише один із найбільших мегаполісів України, а й регіон із постійною динамікою розвитку та масштабного будівництва. Крім високого рівня життя та близькості лагідного Чорного моря є також великий вибір житла:

  • для шанувальників старої Південної Пальміри це зони з потопаючими в зелені дворами та затишними тихими провулками;
  • більш лояльна вартість квартир пропонується на об'єкти в спальних районах;
  • вища вартість в елітних новобудовах із грамотно спланованою інфраструктурою;
  • багато інвесторів вважають за краще купити приватний будинок або котедж на деякому віддаленні від суєти, властивої місцям розташування багатоповерхових будівель.

Відвідавши сайт нерухомості «FAKTOR», можна легко вибрати квартиру на престижному Французькому бульварі з видом на розкішні сходи та заходи сонця, придбати за вигідною ціною нерухомість в Одесі в одному з легендарних одеських двориків, стати власником приватного будинку в області або земельної ділянки під майбутню забудову .

Допомога професіоналів з усіх питань вкладення коштів у нерухомість

Величезна пропозиція на вторинному ринку і в новобудовах для непосвяченої людини вражає своїм широким спектром за варіантами планування, району розташування будівлі, різницею в цінах. Без глибокого знання специфіки ринку зрозуміти суттєву різницю у вартості за 1 м2 приблизно однакових за площею та розташованих поблизу об'єктів дуже проблематично.

Зорієнтуватися у всіх подібних поєднаннях допоможе допомогу компетентного рієлтора. Співпраця з професіоналом дозволяє оперативно та вигідно здійснити покупку в одному з наступних форматів:

  • житло у новобудові з проведеним ремонтом або у чорновому стані;
  • популярні смарт-квартири;
  • земельна ділянка з гарантованою гарною ліквідністю;
  • комерційну нерухомість

Ми підберемо найкращий варіант для найвибагливіших клієнтів!

Переваги купівлі та оренди квартири чи будинку в Одесі з агентством нерухомості «FAKTOR»

Декілька причин пояснюють переваги звернення до професійних ріелторів.

Об'єктивна картина угоди

Одним з головних обов'язків кожного нашого співробітника є надання клієнтам повної інформації про всі переваги та недоліки об'єкта продажу. Більшість пересічних громадян відсутня достатня компетентність збору та інформації.

Забезпечення безпеки

Ми зможемо повністю захистити клієнта від ризику шахрайських дій при покупці. Адже нерідко під оголошенням бажання спілкуватися з покупцями без посередників ховаються злочинці.

Другий важливий момент – особисті інтереси обох сторін угоди практично завжди суттєво розходяться. Агентство нерухомості «FAKTOR» пропонує допомогу ріелторів, які мають знання та ресурс для перевірки достовірності інформації про предмет продажу. Ще один істотний фактор – безпечне виконання взаєморозрахунків. Це дає впевненість, що гроші перераховані потрібній особі і ви стаєте законним власником житла.

Пошук кращого варіанта

При всьому великому діапазоні пропозицій, підібрати найкращий для себе варіант не так просто. Наш агент успішно впорається із завданням економії часу на пошук оптимального варіанту завдяки розумінню актуальних тенденцій на ринку, вмінню грамотно аналізувати всі дані.

Документація

«FAKTOR» – це ідеальний вибір консультанта щодо перевірки справжності документів, історії будинку чи квартири, відповідності нормативам відчуження. Такий комплексний підхід дозволить до дрібниць перевірити юридичну чистоту предмета купівлі.

Передача квартири

Насамкінець ми допоможемо у здійсненні контролю за зняттям об'єкта з реєстрації, відсутності заборгованостей з комунальних послуг, своєчасного звільнення житлової площі колишніми власниками.

Якщо ви хочете убезпечити себе від можливих ризиків та купити квартиру чи будинок в Одесі за реальною ринковою ціною, користуйтесь послугами агентства нерухомості «FAKTOR» – компанії з бездоганною репутацією та великим досвідом успішної діяльності у своєму сегменті ринку послуг.

З нами завжди можна досягти компромісного варіанту угоди, що влаштовує і продавця, і покупця!